Recently, we were in Madrid for business and couldn't resist passing through the area of the Four Towers located on Paseo de la Castellana.

This motivated us to discuss some aspects that we understand to be relevant when designing them. This time, we will focus on the design and distribution strategies of the spaces that we found interesting due to the uniqueness of the resource.
The Tower designed by Norman Foster, currently known as the Cepsa Tower, is part of the architect's various design explorations.

With a height of 248 meters, the Cepsa Tower is the second tallest building in Spain.
Beyond these facts, we want to focus on an aspect that is the distribution of the floor plan that generates 100% free interior spaces throughout its extension with just barely 8 columns in its approximately 1250m2 per floor. The solution was to create an arch that contains the services and vertical circulation, making the circulation within the floor less concentrated as the vertical circulation of services is partitioned on the floor, and frames and highlights the office space, allowing them to have clear views towards the larger sides of the perimeter.

On the other hand, this arrangement also presents challenges. For example, if not planned correctly, the placement of services on the edges of the building can create dark and unattractive corridors in the center of the floor. Additionally, it may be more challenging to achieve uniform lighting and ventilation throughout the space, which can affect the comfort and convenience of the building's occupants.
The case of the Cepsa Tower is an example of a spatial arrangement that has been effectively used to create a modern and efficient workspace. The free floor maximizes natural light and panoramic views, while service cores are located on the edges of the building to improve space efficiency. It is an effective combination of flexibility and efficiency in high-rise building design.
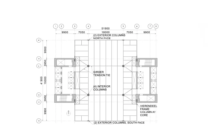
Next, we would like to briefly analyze other successful height design arrangements, in these cases, a central structure is proposed, freeing up the perimeter, as is the case with the Tianjin Global Financial Center tower.

The proposed arrangement simplifies the achievement of a strong and safe structure. Having the structure in the center of the floor improves the distribution of the building's loads.
On the other hand, this arrangement presents some challenges. For example, it may be more challenging to achieve uniform lighting and ventilation throughout the space, which can affect the comfort and convenience of the building's occupants. Additionally, it may limit the flexibility of the free floor design, as the presence of the central structure may restrict design options.
The impact of the different resolutions and techniques used in the two case studies proposed is clear, and their effects on architectural design and the experience and design of spaces, as well as the impact on installations and their design. We hope that this article will make you think about the different alternatives from the point of architectural design and generate questions about them and expand your curiosity for new ones.
